Infrastruktur

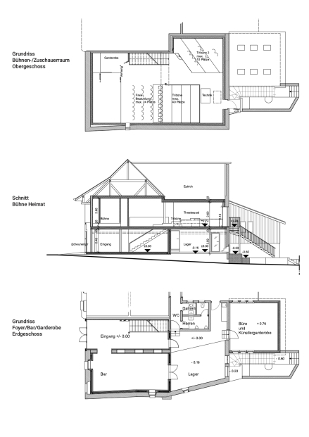
Saalkapazität

75 Sitzplätze

Theaterbar

mit Tresen, Stehtischen, Kaffeemaschine, rückwärtigem Lagerraum mit Kühlschrank, Gläserspülmaschine und Waschbecken

Tontechnik

  • Tonpult: 16-Kanal Presonus StudioLive 16.0.2
  • Lautsprecher: 2 Turbosound NuQ-62BL passiv
  • Monitore: 2 LD Systems Stinger 12A
  • 2 Kabel-Handmikrofone, Sennheiser E 845
  • 2 Headsets, SW 45 T – M725
  • Funkmikrofon-Set Shure UR-Serie, 2-Kanal, pro Kanal 1 Headset + 1 Handmik
  • 2 Galgen-Mikrofonständer
  • 2 DI-Boxen, LD Systems LDI 02 activ
  • 1 Multicore mit 8 Steckplätzen

Lichttechnik

  • LSC Mantra Lite, Direktlink zum Produkt
  • 2 Profiler spotlight combi 05 ZW
  • 8 PC spotlight combi 05 PC 500W
  • Dimmer
    – 1x Actor 616, 6 Kanäle
    – 1x Strand Lighting 6Pack (2x6 Kanäle)

weitere Ausstattung:

  • 1 Beamer
  • 1 Leinwand
  • 1 Klavier Burger&Jacobi (1898)

Für detaillierte Auskünfte kontaktieren Sie bitte
Menf Rhyner, 079 431 88 62, menf@menfund.ch

Plan

Download Bühnen-Plan (PDF, 0.7MB)

Bühnen Plan
Bühnen Plan
Diese Webseite verwendet Cookies. Durch die Nutzung der Webseite stimmen Sie der Verwendung von Cookies zu. Datenschutzinformationen